Our Project
Purchase of Premise at 475 Prospect Rd, Blair Athol SA 5084
Project Cost: A$ 450,000
Fund Raised: A$ 460,000
Project Status: Completed.
Purchase of Premise at 473, 479 Prospect Rd, Blair Athol SA 5084
Project Cost: A$ 1.2M
Project Status: Completed.
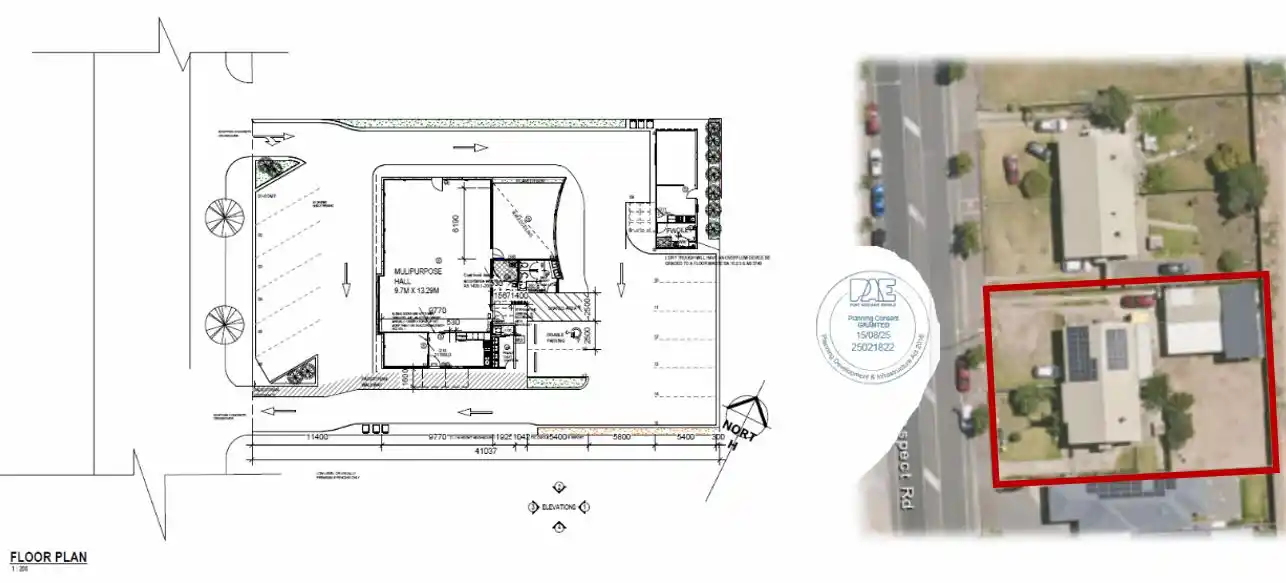
Construction of Masjid Al Hidayah
Estimated Construction Cost: A$ 300,000
Fund Raised: A$ 47,000
Required: A$ 253,000
Project Status: Ongoing.
- Planning Consent Approved
- Building Consent Approved
- Development Approval Granted
- Construction Started.




























